<img height="1" width="1" style="display:none" src="https://www.facebook.com/tr?id=639969142110007&amp;ev=PageView&amp;noscript=1">
Main menu
£1,440 incl. VAT

Advertise, find and move-in your new tenant with ease

*Prices incl. VAT, plus no renewal fees and no hidden fees guaranteed

from £29 incl. VAT

Get listed and secure offers using our self-serve platform

*Prices incl. VAT

Manage your let with us for total peace of mind

*prices incl. VAT, inventory checks, plus no renewal fees guaranteed

Best-practice tips and data-driven insights 
Main menu

Find out how our Landlord DIY products, Get Listed & Get Rented work.

Find out how Get Rented Pro works, let us find and move-in your new tenant

Ready to find your next home? Here's how it works

Main menu

Search and find your perfect lettings property 

Guidance and tips for every tenant need

Refer a landlord and receive £80 vouchers

For access to discounts, deals and giveaways

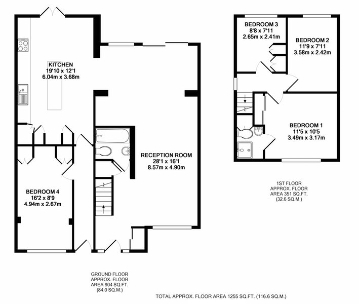
Seacourt Road

£2400 pcm
Security deposit: £2769.23
Property ID: 4103
bedrooms 4
bathrooms 2
1255 sq ft
Floorplans
EPC
Proud to offer this delightful 4 bedroom, 2 bathroom semi-detached house in a great location.\nAvailable to move in from 08 December 2025, this property benefits from available parking, and garden access. \nProperty is offered unfurnished but has built-in wardrobes in 3 bedrooms. The downstairs bedroom has an optional 2nd entrance. \nPlease note the furniture displayed in the listing are from old pictures which are not available with the tenancy as the house is rented unfurnished apart from white goods in the kitchen. \n\nViewing highly recommended. Contact today for more details or to arrange a viewing!