<img height="1" width="1" style="display:none" src="https://www.facebook.com/tr?id=639969142110007&amp;ev=PageView&amp;noscript=1">
Main menu
£1,440 incl. VAT

Advertise, find and move-in your new tenant with ease

*Prices incl. VAT, plus no renewal fees and no hidden fees guaranteed

from £29 incl. VAT

Get listed and secure offers using our self-serve platform

*Prices incl. VAT

Manage your let with us for total peace of mind

*prices incl. VAT, inventory checks, plus no renewal fees guaranteed

Best-practice tips and data-driven insights 
Main menu

Find out how our Landlord DIY products, Get Listed & Get Rented work.

Find out how Get Rented Pro works, let us find and move-in your new tenant

Ready to find your next home? Here's how it works

Main menu

Search and find your perfect lettings property 

Guidance and tips for every tenant need

Refer a landlord and receive £80 vouchers

For access to discounts, deals and giveaways

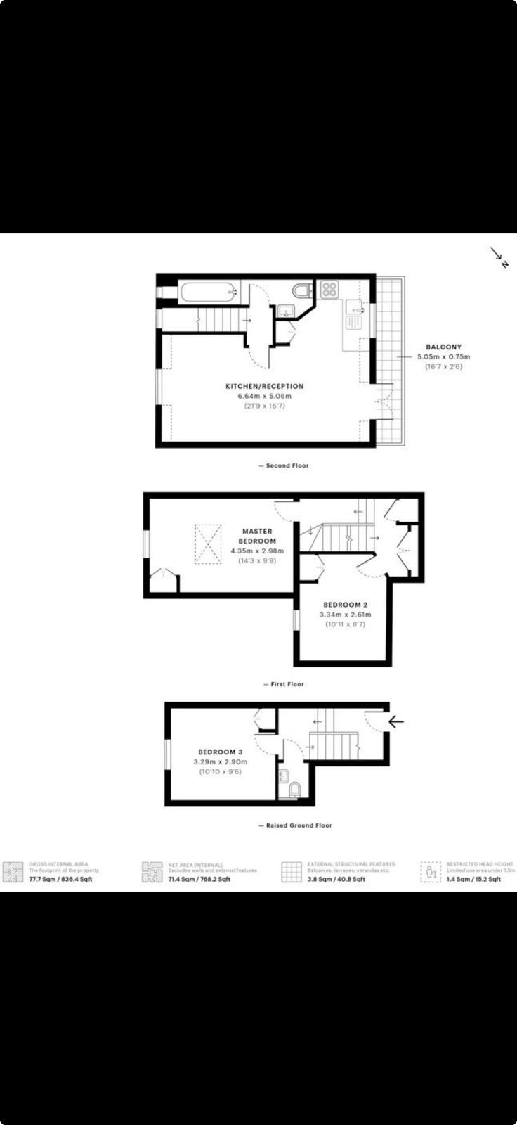
Narford Road

£3300 pcm
Security deposit: £3807.69
Property ID: 4188
bedrooms 3
bathrooms 2
836 sq ft
Floorplans
EPC
Beautiful 3 bed flat available in Stoke Newington\n\nConveniently located on a leafy quiet street between Rectory Road & Clapton overground stations, this split level flat is a stone's throw away from Stoke Newington Church Street, Clapton, and Hackney central, with many wonderful shops and pubs on its doorstep (Londis N16 and the Crooked Billet!). \n\nThe flat itself is arranged over four floors, with heaps of natural light and space. There are three double bedrooms, two of similar sizes, and one larger one with a stunning high ceiling and skylight. The open plan kitchen and living room opens out onto a small private balcony. There is one full bathroom, plus one additional toilet separate. \n\nLooking for a group or individual to take on a 12 month tenancy from January 7 of £3,300 pcm, with 5 week's rent as deposit. \n\nPlease drop us a message if you have any questions or want to arrange a viewing!