<img height="1" width="1" style="display:none" src="https://www.facebook.com/tr?id=639969142110007&amp;ev=PageView&amp;noscript=1">

Kendal

£2599 pcm
Security deposit: £2998.85
Property ID: 4435
bedrooms 4
bathrooms 2
805 sq ft
Floorplans
EPC
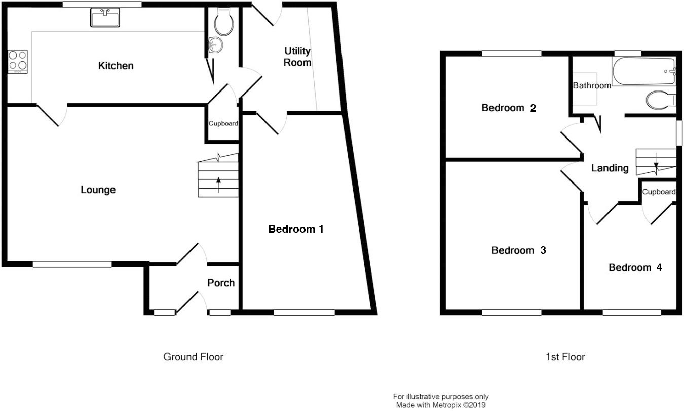
*STUDENT PROPERTY* Available 2nd Aug\nKey features\nFour bedrooms\nFully furnished study rooms\nGreat access to UWE\nFull bathroom upstairs with a downstairs WC\nOff street parking space for one car\nUtility roomWhite goods included\nFully furnished\nBig back garden\nDishwasher included\nWashing machine with dryer\nA short walk from amenities\nGood access to City Centre\nHolding Deposit: £500\n\nProperty description - Light and spacious four bedroom house in Horfield with a spacious garden, offered fully furnished with white goods and available on the 2nd Aug '26 for a 12 month tenancy. The house is located within walking distance of UWE as well as being within a stones throw of bus stops for the UWE link and buses to the City Centre via the popular Gloucester Road. Amenities such as Tesco Express, takeaways and Horfield library are all within walking distance.\n\nThe accommodation briefly comprises: a large living/dining room furnished with sofas, coffee table, dining table & chairs, kitchen which benefits from plenty of unit storage, dishwasher and fridge, utility room with washing machine and dryer, fridge and freezer, four good sized bedrooms that are furnished as study rooms, a bathroom with a shower over the bath and a large back garden with chairs and an outdoor table.\nThe property also benefits from: a downstairs WC, storage space, off street parking for one and gas central heating.\n\nPlease note: Tenants with pets will not be considered for this property. Professionals also welcome.