<img height="1" width="1" style="display:none" src="https://www.facebook.com/tr?id=639969142110007&amp;ev=PageView&amp;noscript=1">

Sweetman place

£1300 pcm
Security deposit: £1200
Property ID: 4507
bedrooms 1
bathrooms 1
56 sq ft
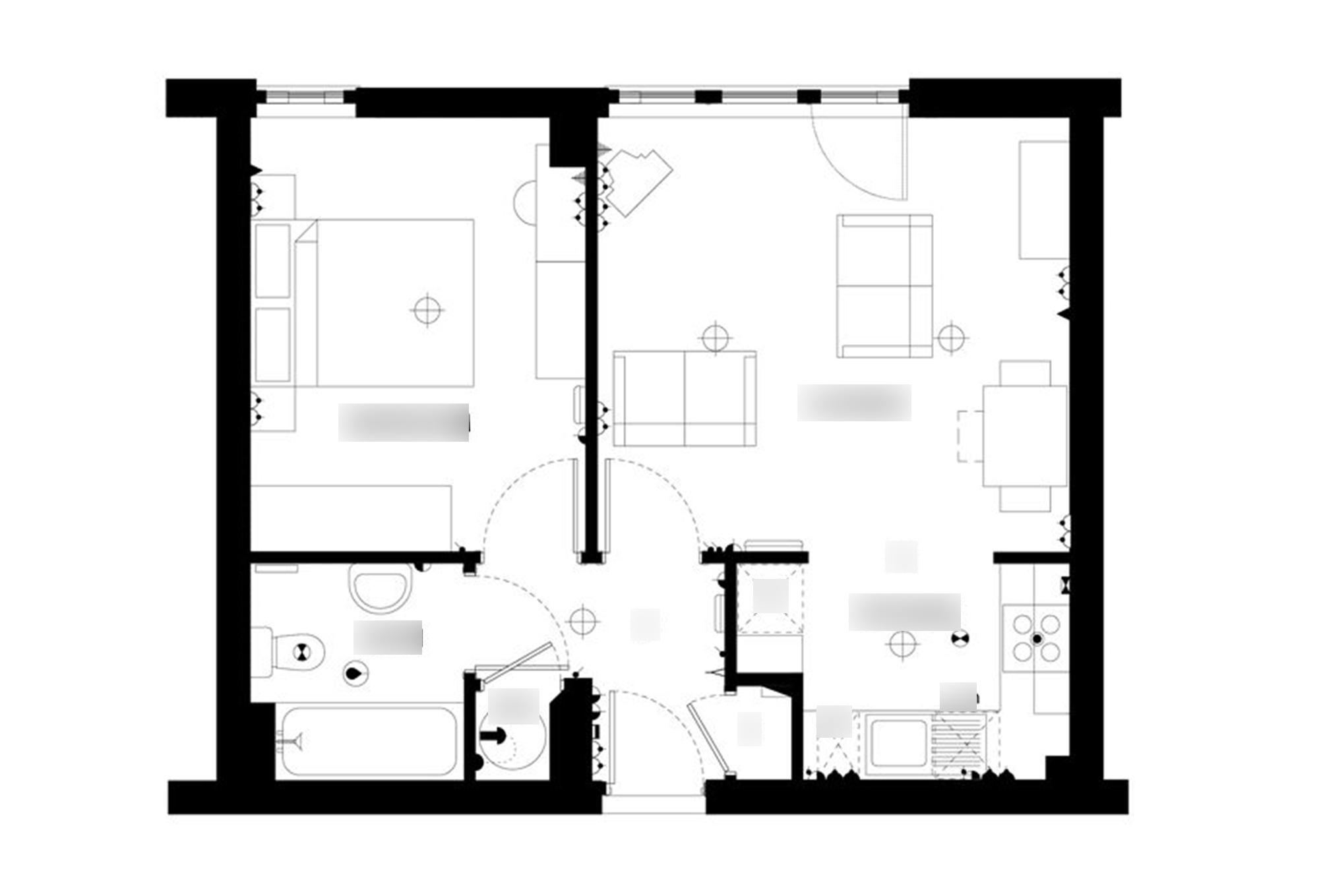
Floorplans
EPC
Key features\nModern Home\nOne bedroom flat\nGreat Location\nOpen Plan Kitchen/Living Room\nCommunal Roof Top Gardens\nCommunal on site Gym\nFourth floor apartment \nLift in building \n\n\nOne Bedroom Flat\n\nThe property comprises a spacious open plan kitchen(2.13m x 1.83m) / living room(3.96m x 3.66m), a good sized double bedroom(3.66m x 2.74m) and a bathroom with modern suite (1.83m x 1.83m).\n\nIncluded there is use of a communal Gym within the building development and also shared use of the roof top terraced gardens with seating areas and views across the city.\n\nThe location is ideal for those looking to have easy access to the city centre, Bristol Temple Meads and business based in the Temple area. Communal parking on site.\n\n\nKitchen complete with integrated washing machine and fridge freezer.\n\nWill suit professional single or couple.