<img height="1" width="1" style="display:none" src="https://www.facebook.com/tr?id=639969142110007&amp;ev=PageView&amp;noscript=1">

Geraldine Road

£2450 pcm
Security deposit: £2826.92
Property ID: 2951
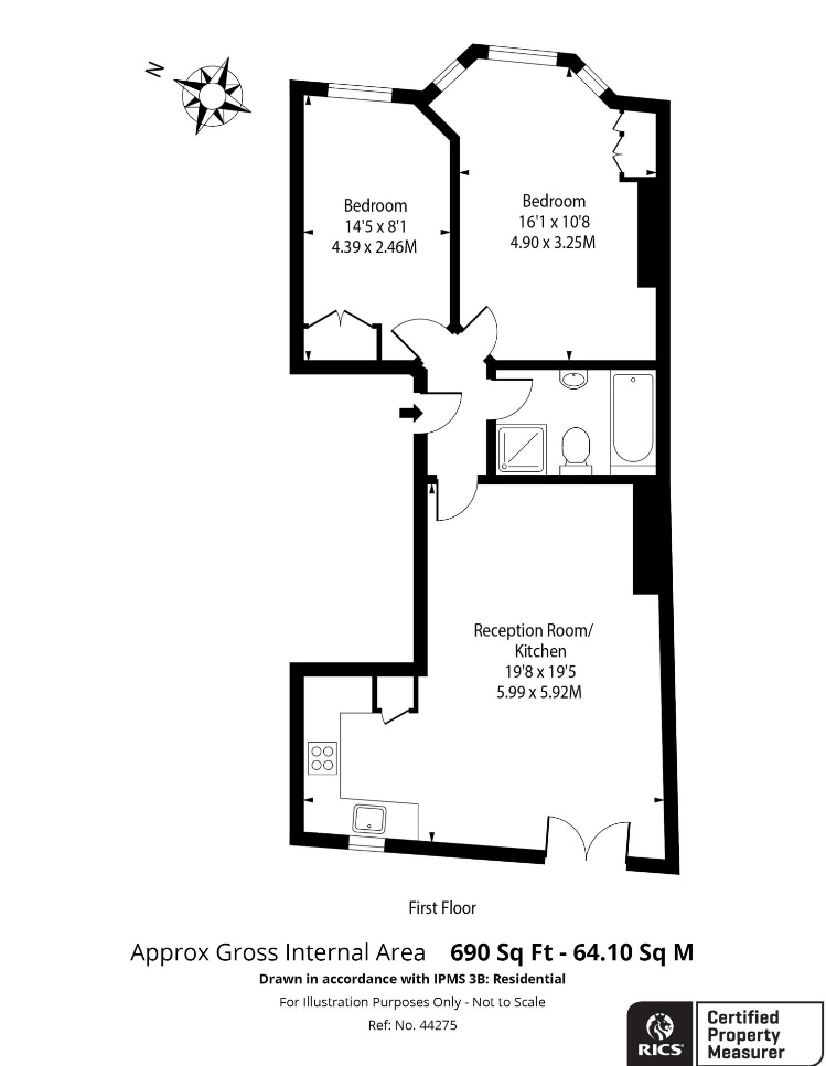
bedrooms 2
bathrooms 1
690 sq ft
Floorplans
EPC
Hello Neighbour proudly presents this stunning first-floor 2-bedroom flat finished to an exceptional standard in a prime Wandsworth location, SW18.\n\nThis furnished residence features an expansive reception room that seamlessly flows into a dining area, creating a welcoming space for relaxation and entertaining. The sleek, modern fitted kitchen is semi-open plan, complete with a stylish kitchen bar, perfect for casual dining.\n\nThe two well-proportioned double bedrooms, one of which is a king sized master bedroom, both boast built-in cupboards and receive plenty of natural light. The flat also includes a larger-than-average modern 3-piece bathroom, exquisitely finished with stunning gold fixtures that add a touch of luxury. \n\nTransport:\nGeraldine Road is ideally positioned, with Wandsworth Town mainline station approximately 0.4 miles away, providing regular direct train services to Clapham Junction and London Waterloo. Numerous bus routes serve the area, making commuting convenient and straightforward.\n\nOld York Road, just 0.5 miles away, offers local restaurants, boutique shops, pubs, and bars. Southside Shopping Centre, 0.4 miles away, features high street shops, dining, a cinema, and supermarkets like Waitrose and Sainsbury’s.\n\nParking: on street permit with council.\nPets: on request.\n\n*To book a viewing: submit your enquiry and you'll receive an email and SMS detailing availability - within 10 min
Fully furnished
Comfortable second double bedroom (currently study but flexible)
Juliet balcony
Finished to a high standard
Refurnished throughout - new bathroom, new carpets, new kitchen (stone worktops and 4 piece Bosch appliance suite), new hardwood flooring
Great Location
Virgin Media TV package multi-room (SkySports, TNT Sports, Sky Movies, all in ultra HD).
Wall mounted TV in master bedroom is included
Two designer sofa beds included
King sized master bedroom