<img height="1" width="1" style="display:none" src="https://www.facebook.com/tr?id=639969142110007&amp;ev=PageView&amp;noscript=1">

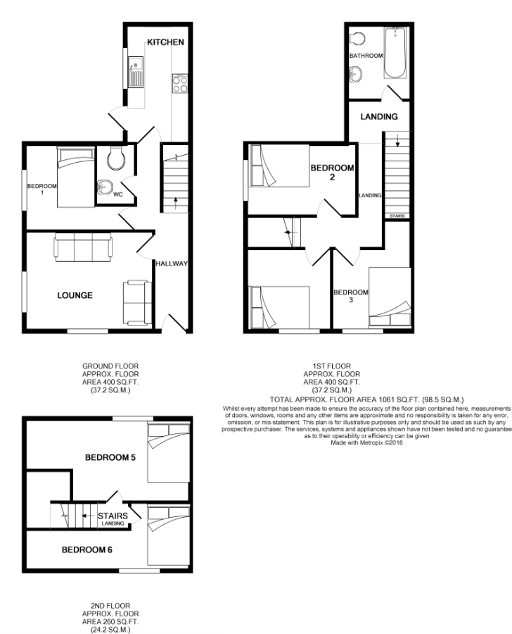
Chester Street

£3120 pcm
Security deposit: £2880
Property ID: 4517
bedrooms 6
bathrooms 2
1108 sq ft
Floorplans
EPC
A large property situated in Sandyford, and only 2 minutes away from Northumbria university and a 10 minute walk into the city centre - making it ideal for students.\n\nFurnished bedrooms with double beds.\n\nKitchen fitted with washer dryer.\n\n2 modern bathrooms fitted with showers.\n\nSeparate W.C.\n\nPrivate yard at rear of property.