<img height="1" width="1" style="display:none" src="https://www.facebook.com/tr?id=639969142110007&amp;ev=PageView&amp;noscript=1">

9 Lind Road

£2050 pcm
Security deposit: £2365.38
Property ID: 4697
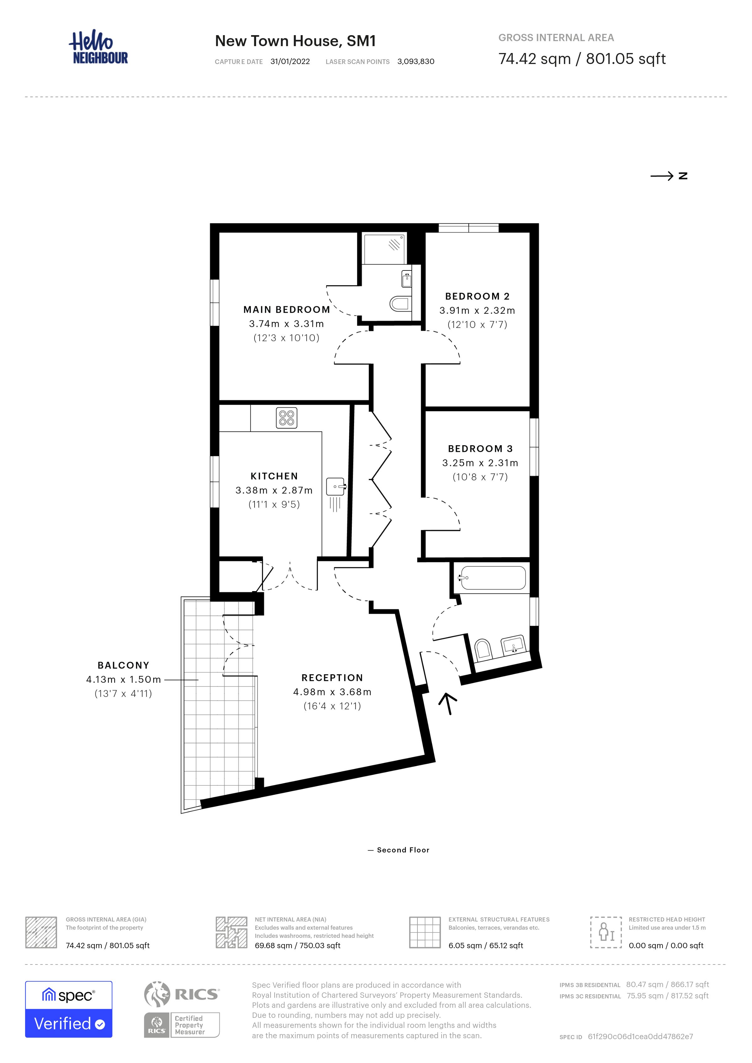
bedrooms 3
bathrooms 2
797 sq ft
Floorplans
EPC
Hello Neighbour are proud to present this bright and well laid out 3 bedroom flat located in Sutton, SM1. \n\nThe property offers a spacious reception room filled with natural light, with large doors opening onto a private balcony, perfect for enjoying some outdoor space. The separate kitchen is modern and well equipped, with ample storage, white goods included and space for dining.\n\nThere are three well proportioned bedrooms, including a generous main bedroom with built-in storage and an ensuite bathroom. The additional bedrooms are ideal for sharers, a family or a home office setup. A second contemporary bathroom completes the property.\n\nOffered unfurnished, this home provides a clean and versatile space with a practical layout throughout.\n\nLocated in Sutton, the property is within easy reach of local shops, cafes and everyday amenities, with good transport links nearby for easy access into Central London and surrounding areas.\n\nTo book a viewing: submit your enquiry and you'll receive an email and SMS detailing availability - within 10 min
Natural light throughout
Modern interior
Private balcony
White goods included
Unfurnished
Unfurnished
Large kitchen/diner
Fully fitted kitchen